Zwettl "Weinbergstraße"
Von insgesamt acht modernen Doppelhaushälften sind derzeit noch drei Einheiten verfügbar. Sie stellen eine ausgezeichnete Investitionsmöglichkeit dar: Befristet vermietet, sichern sie Anlegern sofortige Mieterträge – mit der attraktiven Option auf eine spätere Eigennutzung.
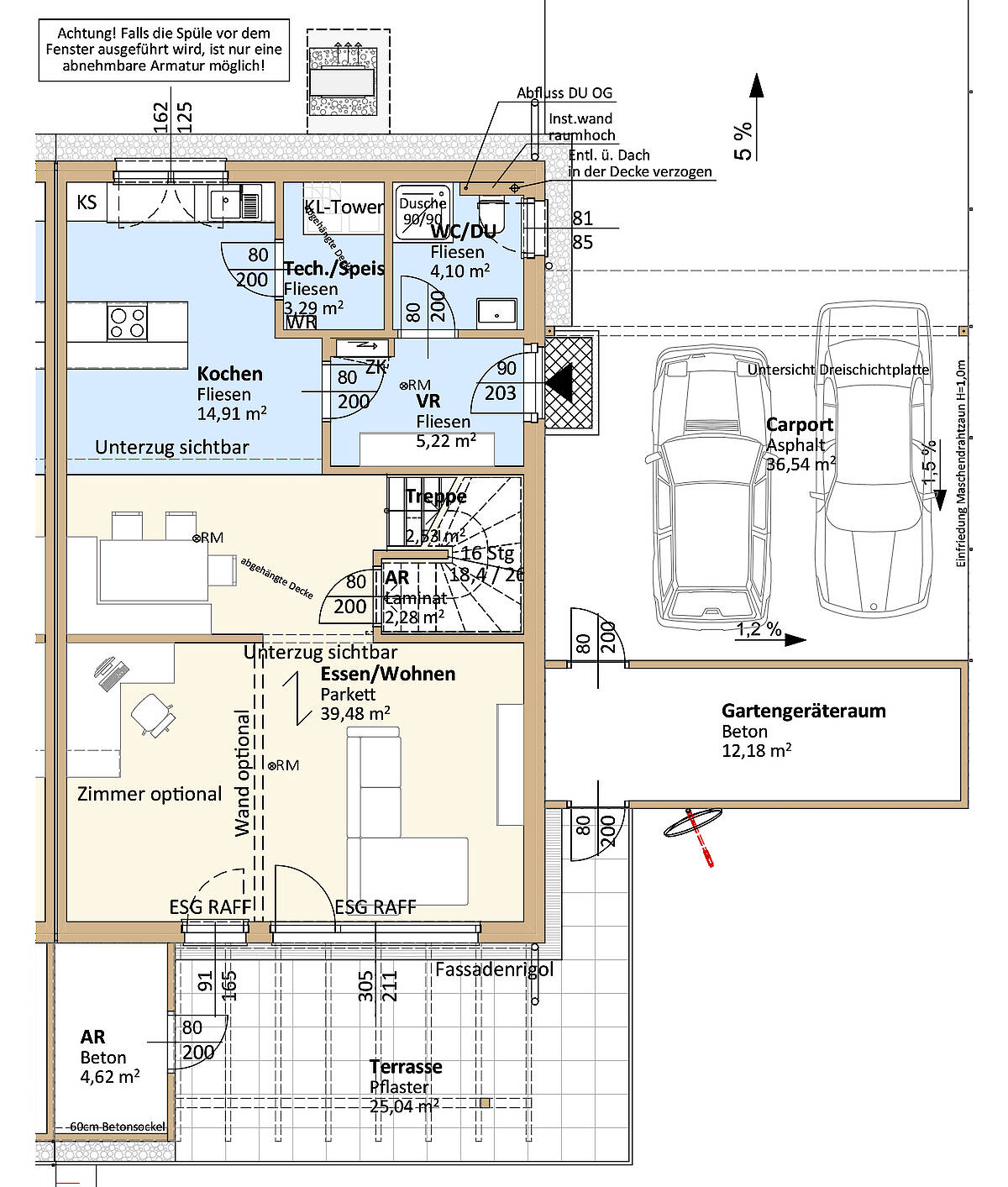
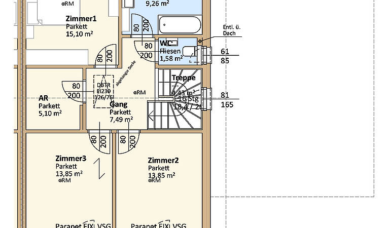
Im Erdgeschoss überzeugt der offene Wohn- und Essbereich mit Zugang zur Terrasse und in den Garten – perfekt für gemeinsame Zeit mit Familie und Freunden. Im Obergeschoss erwarten Sie helle, gut geschnittene Zimmer, die sich flexibel als Schlaf-, Kinder- oder Arbeitszimmer nutzen lassen. Praktische Nebenräume, eine Garage sowie ein zusätzlicher Außenstellplatz runden das Angebot ab.
							     
					 		
					  
				-  	
Hervorragende Investitionsmöglichkeit mit sofortigem Mietertrag (befristet vermietet; zuverlässige Mieter)
 -  	
Ruhige Lage am Ortsrand von Zwettl mit viel Grün
 -  	
Nahversorgung, Schulen und Kindergarten in der Nähe
 -  	
Kurze Wege zu Busbahnhof, Park & Ride sowie Freizeiteinrichtungen
 -  	
Sonnige Terrasse und gepflegter Garten
 -  	
Garage plus zusätzlicher Stellplatz
 
							     
							     
					 
				Die Doppelhaushälften verfügen jeweils über einen Doppelcarport und großzügige Grundstücksflächen zwischen 304 und 542 m². Mit einer Nettogrundrissfläche von 138,04 m² in ökologischer Niedrigstenergiebauweise – ausgeführt in bewährter HARTL HAUS Qualität – bieten sie modernen Wohnkomfort. Hochwertige Details wie die Eiche-Massivholztreppe sowie Holz-Alu-Eingangstüren und Fenster mit 3-Scheibenverglasung aus der hauseigenen Tischlerei stehen für Langlebigkeit und Wertbeständigkeit. Für ein angenehmes Raumklima sorgen die Luft-Wasser-Wärmepumpe mit Fußbodenheizung und Kühlfunktion sowie die kontrollierte Wohnraumlüftung. Abgerundet wird das Wohnkonzept durch den südseitigen Garten mit Terrasse und einen großzügigen Geräteraum.
Zur individuellen Erweiterung stehen verschiedene Optionen zur Wahl: Eine PV-Anlage mit 2,25 oder 4,5 kWpeak sorgt für nachhaltige Energiegewinnung, Raffstores ermöglichen eine komfortable Abschattung. Zusätzlich sind eine Schallschutzhaube für die Wärmepumpe sowie eine Sat-Anlage verfügbar. So lässt sich jedes Zuhause nach persönlichen Wünschen optimal anpassen.
							     
					 		
					  
				Preis
auf Anfrage
Standort
nördlicher Ortsrand
 von Zwettl
Baujahr
2022
INTERESSE? VEREINBAREN SIE JETZT EINEN BESICHTIGUNGSTERMIN
Jürgen Koppensteiner
 Leitung Objektbau HARTL HAUS
Tel: +43 2849 8332-270
 E-Mail: juergen.koppensteiner(at)hartlhaus.at