3813 Dietmanns

In Dietmanns bei Groß Siegharts befinden sich drei Einfamilienhäuser, die höchsten
Wohnkomfort und Nachhaltigkeit vereinen.

DIE EINFAMILIENHÄUSER VON HARTL HAUS IN DIETMANNS

Am südlichen Rand der Gemeinde Dietmanns, in einer ruhigen und sonnigen Lage, befinden sich unsere exklusiven
Einfamilienhäuser. Das Grundstück bietet einen ungestörten Blick auf die idyllische, unbebaubare Landschaft in Richtung
Georgenberg und ist absolut hochwassersicher.

Unsere Häuser sind so konzipiert, dass sie höchsten Wohnkomfort und ökologische Nachhaltigkeit vereinen.

Details

Standort

Ortsrand
von Dietmanns

Fläche

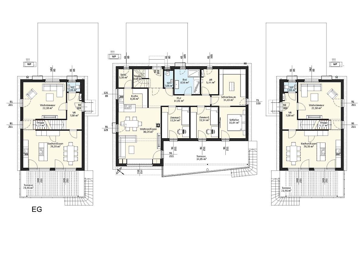
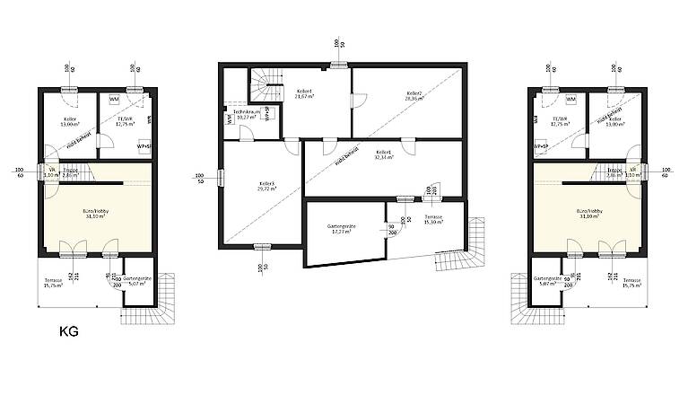
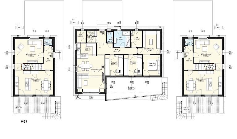
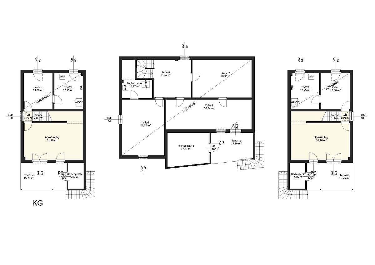
Top 1: Nettogrundrissfläche: 188,77 m² / Grundstücksfläche: 514,5 m²

Top 2: Nettogrundrissfläche: 247,17 m² / Grundstücksfläche: 718,5 m²

Top 3: Nettogrundrissfläche: 188,77 m² / Grundstücksfläche: 515 m²

 

Baujahr

2024/2025

Grundrisse & Lageplan

Kontakt

Romana Kirchmayr

Tel: +43 2849 8332-246

E-Mail: objektbau(at)hartlhaus.at