Mehrfamilienhaus 378 W

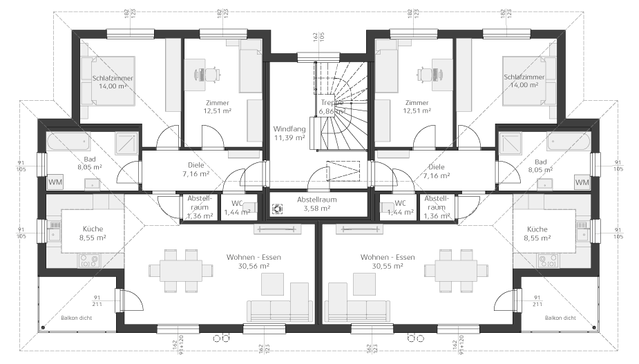
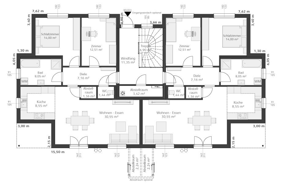
DIESE SEHR FLEXIBLE 4-PARTEIEN-LÖSUNG besticht durch eine effiziente Raumnutzung mit wenigen Verbindungsflächen. Nach Wunsch können je Einheit zwei oder drei Zimmer geplant werden. Jede Wohneinheit verfügt über einen eigenen Balkon beziehungsweise eine eigene Terrasse. Dieses Haus steht als Beispiel für zahlreiche individuelle Objektbaulösungen, die wir bereits realisiert haben. Wir haben seit vielen Jahren Erfahrung in diesem Bereich, fragen Sie einfach nach unserem Objektbaukatalog!

Eckdaten

Kategorie

Traumhaus
Die Traumhäuser sind sowohl Vorlage als auch Inspirationsquelle für unser Kunden. Diese werden individuell auf die Bedürfnisse des Kunden abgestimmt.

Dachform und Fläche

22° Walmdach

240.56 m2 bebaute Fläche

188.91 m2 Erdgeschoss
189.07 m2 Obergeschoss
______________________________
377.98 m2 Nettogrundrissfläche
Flächenberechnung laut Ö-Norm B 1800, für Deutschland DIN 277

Was spricht für uns?

Informieren Sie sich über die Vorteile, die HARTL HAUS als Qualitätsführer im Fertighausbau auszeichnen!

Weitere Informationen

Grundrisse

Gefällt Ihnen, was Sie sehen?

Interaktive 3D-Ansicht

IHR INTERAKTIVER HAUS-SPAZIERGANG

Klicken Sie auf das Bild für die 3D-Ansicht.

Zum Navigieren verwenden Sie die eingeblendeten Schaltflächen oder ziehen mit der Maus.

Besonderheiten

Haus mit mehreren Wohneinheiten

Platzsparendes, komfortables Doppel- oder Mehrfamilienhaus.

IHRE VORTEILE

Haustyp mit vier Wohneinheiten

  • 4 separate Wohneinheiten (2 WE im EG und 2 WE im OG)
  • jeweils 2-3 Schlafräume
  • moderne, offene Wohnküche

WEITERE VORTEILE

  • platz- und energiesparende Bauweise
  • mit Terrassenbereich bzw. Balkon

SERVICE & BERATUNG

Kontaktieren Sie uns! Wir freuen uns auf Sie.
Tel: +49 89 60824753